Box / posti auto in vendita

Palermo, Via Dominici Matteo - San Lorenzo
€ 32.000
Prezzo aggiornato
1 locale 1 locale
35 Mq 35 Mq

Box / posti auto in vendita

Palermo, Via Dominici Matteo - San Lorenzo

Descrizione annuncio

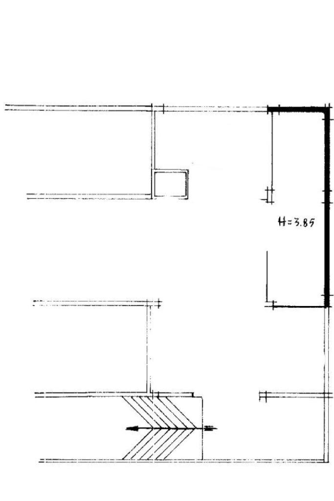
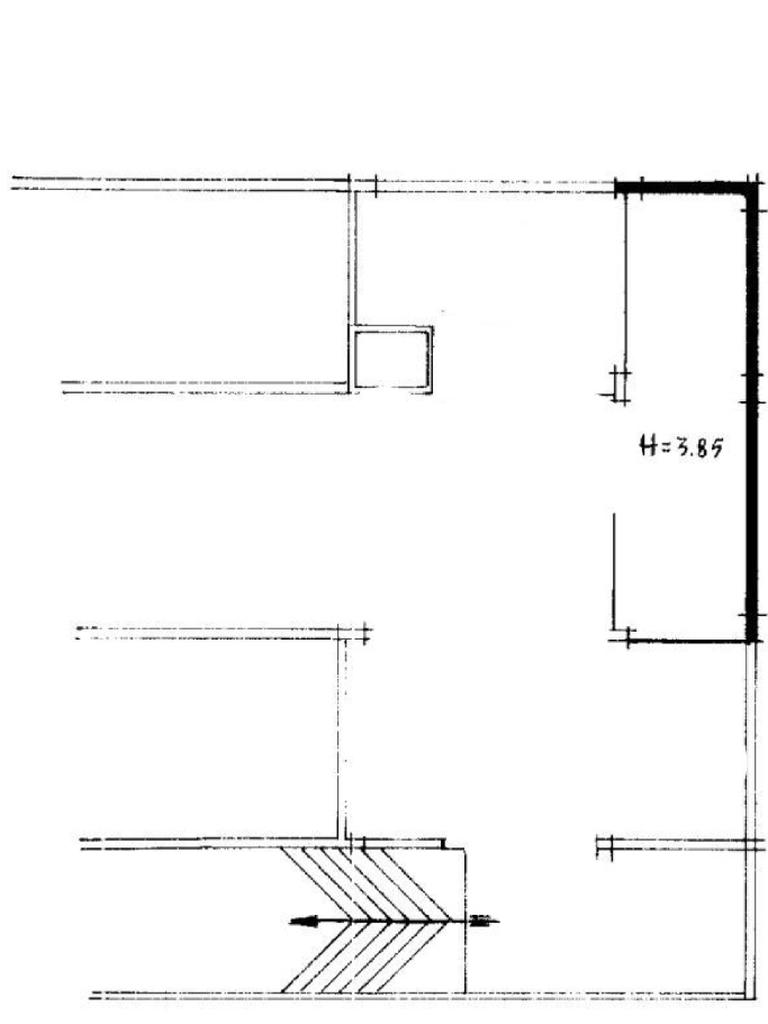
Nel cuore della località di San Lorenzo e a due passi dal Viale Strasburgo, è disponibile in vendita un box di 35 mq, situato al piano seminterrato di un edificio dotato di ascensore.

Costruito nel 1980, questo spazio offre un ambiente ampio e ben organizzato, ideale per chi cerca una soluzione pratica e funzionale.

Il box è soppalcato, permettendo di ottimizzare lo spazio disponibile e di gestire al meglio le proprie esigenze di stoccaggio.

Un punto luce privato garantisce un'illuminazione adeguata, mentre la saracinesca elettrica assicura un accesso comodo e sicuro.

Lo spazio di manovra è ampio, facilitando l'ingresso e l'uscita dei veicoli.

Questa proprietà rappresenta un'opportunità interessante per chi desidera un box spazioso e ben posizionato nella vivace area di San Lorenzo/Viale Strasburgo

E' possibile visionarlo previo appuntamento telefonico.

Chiama al numero, 091.6373163, o scrivici su Whatsapp 342.0317442, via mail

Il nostro franchising, su richiesta, mette a disposizione dei propri clienti un consulente che si occupa della mediazione creditizia e assicurativa.

Se desideri sempre aggiornamenti e anticipazioni su nuove proposte immobiliari seguici sui nostri canali social, facebook, instagram e tik tok.

Mostra tutto

Nelle vicinanze

Trasporto pubblico Trasporto pubblico
Palermo San Lorenzo
Palermo San Lorenzo
1,1 Km
Imperatore Federico
Imperatore Federico
2,4 Km
Strasburgo - Ingegneros
Strasburgo - Ingegneros
170 m
Strasburgo - Francia
Strasburgo - Francia
180 m
Palermo Francia
Palermo Francia
560 m
Ricariche auto elettriche Ricariche auto elettriche
ALD Costa CAR SERVICE PALERMO | ENELX
700 m
CONAD SUPERSTORE Palermo Mandalà | EnelX
1,6 Km
EnelX EVA+ Negozio Enel di Palermo
2,8 Km
Scuole Scuole
Vittorio Emanuele
540 m
Scuola elementare Iblei
610 m
Istituto superiore Duca Abruzzi - Libero Grassi
620 m
Istituto tecnico "Ettore Majorana"
900 m
Direzione Didattica Statale "Alcide De Gasperi"
1,1 Km
Farmacia Farmacia
Farmacia Strasburgo
510 m
Farmacia Dr.Domenico Vetro
560 m
Parafarmacia Conad
740 m
Farmacia ausonia
790 m
Parafarmacia Saporita
1,1 Km
Ospedali Ospedali
Ospedali Villa Sofia Cervello
850 m
Ospedale Vincenzo Cervello
1,4 Km
Centro Traumatologico Ortopedico
1,4 Km
Supermercati Supermercati
Conad
730 m
Carrefour
1,2 Km
Lidl
1,4 Km
Ard discount
1,5 Km
Prezzemolo & Vitale
1,7 Km
Negozi Negozi
Market Moda
580 m
Bellavia Ricami s.p.a.
770 m
Negozi
930 m
Michele Inzerillo
1,1 Km
Graziano
2,1 Km
Bar Bar
Fabric
1,1 Km
Il chicco in frac
1,2 Km
Sicilia
1,9 Km
Bar
2,0 Km
Alba
2,2 Km
Ristoranti Ristoranti
Santoro
1,1 Km
La Brasserie Valderice
1,2 Km
Ristorante Cutino
1,5 Km
Hanami Sushi
1,9 Km
Pizza Uno
2,0 Km
Mostra tutto

Caratteristiche

Rif.:
61133895
Piano:
-1 di 5 con ascensore (Piano seminterrato)
Arredamento:
Assente
Condizionamento:
Assente
Ascensore:
Riscaldamento:
Assente
Mostra tutto
Prezzo Prezzo
€ 32.000
Rata mutuo Rata mutuo
€ 152 / mese
Spese annue Spese annue
€ 60
Proponi il tuo prezzoProponi il tuo prezzo

Classe Energetica

Questo immobile è esente da classe energetica
Anno di costruzione:
1980
Riscaldamento:
Assente

Prezzo ridotto di €1 (12%%)

Ti interessa visionare l'immobile?

Fissa un appuntamento  Fissa un appuntamento

Richiedi informazioni

Clicca su Leggi per aprire l'informativa
* Questi campi sono obbligatori

Calcola il tuo mutuo

Semplice e senza impegno
Anticipo

( % )
Mutuo

( % )

pochi semplici passi

inserisci i tuoi dati
Questionario completato
Grazie per aver richiesto un appuntamento senza impegno con un nostro Consulente del Credito e Assicurativo.

Hai inserito correttamente tutti i dati necessari e a breve riceverai una e-mail con un link da convalidare per inviare i tuoi dati.
Affiliato
Strasburgo Casa Sas
Via Strasburgo, 492 90146 Palermo (PA)

Il nostro staff


  • Alessia Ferreri
    Collaboratrice

  • Daniele Madonia
    Affiliato

  • Giuseppe Massaro
    Responsabile

  • Simona Argento
    Coordinatrice

  • Marzia Sciortino
    Collaboratrice
Via Strasburgo, 492 90146 Palermo (PA)
Zona: Strasburgo-San Lorenzo
Mostra su mappa
Orari: lun. - sab. 9.00 - 13.00 e 15.30 - 20.00
Affiliato
Strasburgo Casa Sas
Via Strasburgo, 492 90146 Palermo (PA)

2026 Tecnocasa Franchising S.p.A. - P. IVA 08365160152 - Via Monte Bianco 60/A 20089 Rozzano (MI). Ogni agenzia ha un proprio titolare ed è autonoma. Privacy policy | Policy utilizzo | Cookie policy